View the embedded image gallery online at:
https://grata-eco-house.se.cp52712.cloudhosting.lv/proekty/proekty-s-obshej-ploshadju-150m2/69-proekt-odnoetazhnogo-karkasnogo-doma-agnete#sigProId2cd0877605
https://grata-eco-house.se.cp52712.cloudhosting.lv/proekty/proekty-s-obshej-ploshadju-150m2/69-proekt-odnoetazhnogo-karkasnogo-doma-agnete#sigProId2cd0877605
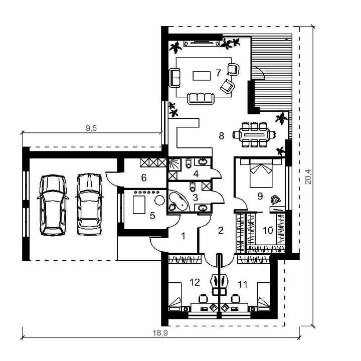
1-planshus Agnete.
| Boarea | 141 m2 |
| Längd | 20,4 m |
| Bredd | 18,9 m |
| Antal rum | 4 |
| Garage | Ja |
Ring för mer information:
+371-670-16-500

